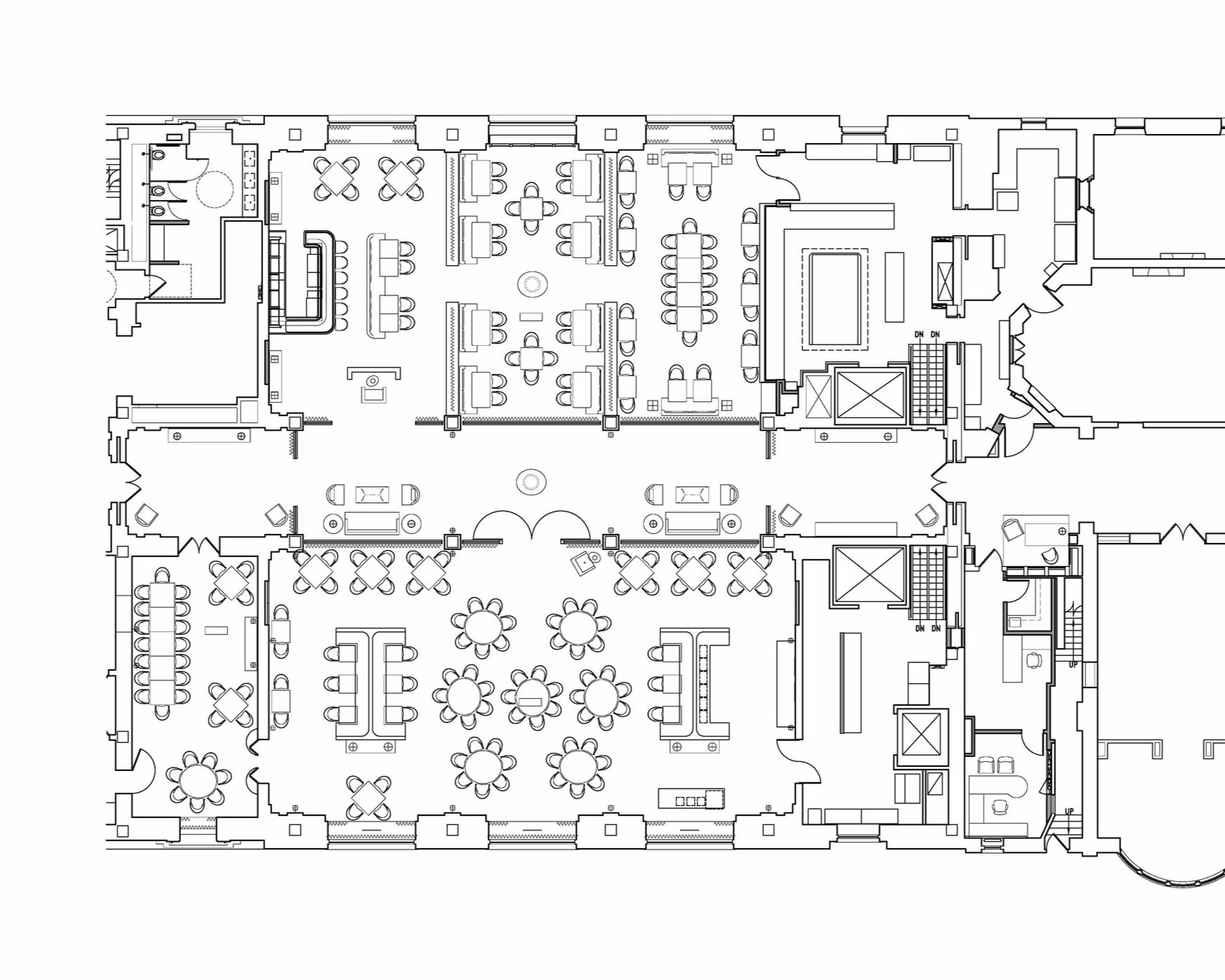
A historic brownstone and premier private club on Philadelphia’s main Broad Street gets a complete gut renovation. Two new restaurants on the first floor and a private room for small parties in the basement were created for the growing membership.
Site
140 S Broad St, Philadelphia
constructed
October 2009
Team
Juliet Fajardo, Architect (BLTa)
Colby Cauchon, Interior Designer (BLTa) Hunter Roberts Construction Group, Contractor
HIGHLIGHTS
Transforming the unfinished basement space into a wine cellar that could double up as a rentable private dining space was quite the designer’s dream come true.
